Back to models
Model

VIVÔ 2.0 - H.OM series model

Model

VIVÔ 2.0 - H.OM series model

Price on demand
2
No
1050 ft2

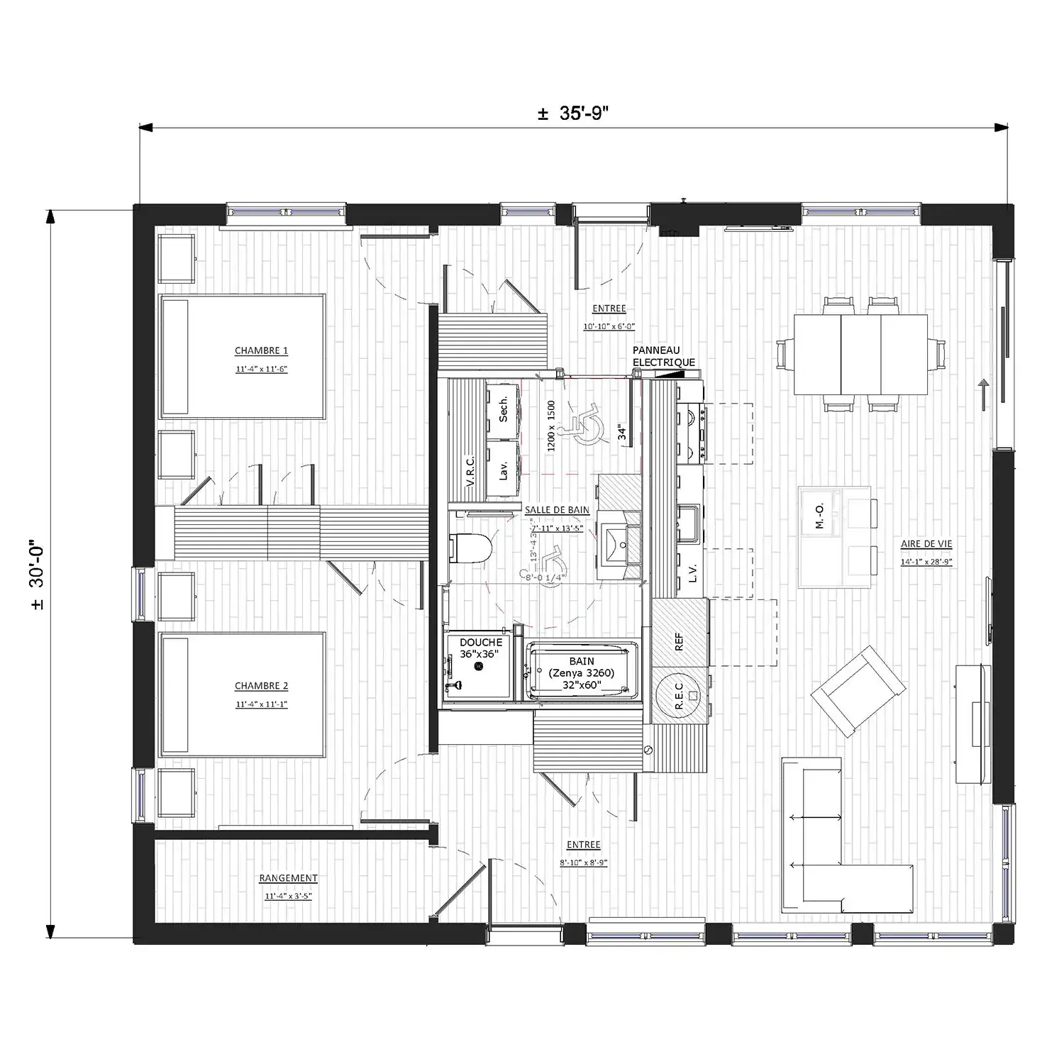
Vivô 2.0 - H.O.M Series Prefabricated Home Model – designed through a Highly Optimized Manufacturing process.

The intelligent evolution of home living
Welcome to a new era of accessible, sustainable housing designed for modern life. Vivô 2.0 is the result of forward‑thinking innovation founded on smart design principles that combine build quality, fast assembly, and cost control—without compromising comfort or aesthetics. One home, two identities: a vacation feel and an urban presence.

Vivô 2.0 is designed with two distinct faces in a single home: a private façade and a panoramic façade. Rotate and position it on your lot however you choose. Whether nestled in nature, with its glazed façade facing the view, or placed in an urban setting with its discreet front, Vivô 2.0 adapts to its surroundings with both intelligence and style.

Highlights of the Vivô 2.0

Modular design & simplified architecture
An optimized approach for fast production, making it accessible to more people.

Smart structure & high‑value included features

Thanks to its technical core, the mechanical building systems, kitchen, bathroom, and laundry are included as standard and pre-installed in the factory! Every element is designed to maximize quality & functionality while maintaining financial accessibility—because every square foot and every dollar matters.

Reduced footprint & sustainable performance
Optimized dimensions and durable, eco‑responsible materials that allow you to build better, with less.

A bright, open living space that charms instantly
Panoramic living room
Dining area with patio door
Inviting kitchen with central island

The layout includes:
Two bedrooms with closets
A functional entryway with wardrobe and bench nook
A full bathroom with bathtub, independent shower, toilet, and wall‑mounted cabinetry for easy maintenance
Integrated laundry area

Vivô 2.0 can be installed on a concrete foundation with basement or on a slab‑on‑grade foundation, depending on your needs.

To learn more about our leading-edge prefabrication technology, visit hom.maisonlaprise.com

Illustrations for reference only. Furniture and décor not included.

Learn more
Share
Inspirations
Interior
Make your dream home come true!
Other useful solutions for your project
You would like to alter this home plan?
We can alter and pre-engineer the home structure of our 250 home models according to your needs and requirements thanks to custom prefabrication!
Book an appointment >
You would like to personalize your home building scenario?
We can customize your home buying scenario in line with your intended level of involvement and your budget. Do budget scenarios with one of home experts and get closer to your budget!
Get in touch with us! >
We pre-engineer to measure
We can custom prefab according to the home plan chosen or the architectural plan provided. Bring your inspirations, sketches or architect's plan. Get closer to your dream home!
Discover our kit >
heartmap-markermapmagnifiercrossmenuarrow-leftarrow-right