Modèle

KISÔ

Prix sur demande
Yes
pi2

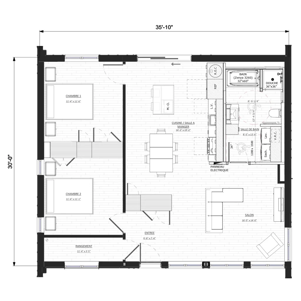
KISÔ – Modèle de maison préfabriquée de série H.O.M - conçu selon un processus de Haute Optimisation Manufacturière.
Le modèle KISÔ réinterprète les lignes épurées, volumes simples et matériaux naturels caractéristiques de l’inspiration nordique scandinave. Son pignon vertical affirmé rappelle les maisons scandinaves, tandis que la fenestration généreuse sur toute une façade inonde les espaces de lumière et crée un lien harmonieux entre l’intérieur et le paysage. KISÔ peut être implanté aussi bien en ville qu’en villégiature.

Alliant architecture simple et design fonctionnel, la maison a été pensée pour une production efficace, tout en intégrant des équipements de série performants qui maximisent confort et praticité. Ses dimensions et matériaux optimisés permettent de réduire l’empreinte écologique tout en assurant une durabilité à long terme.

L’espace de vie ouvert et lumineux comprend :
• Salon panoramique
• Salle à manger conviviale et lumineuse
• Cuisine avec îlot central et accès direct au patio

L’aménagement inclut également :

• Deux chambres avec penderies
• Entrée fonctionnelle avec coin banquette et garde-robe
• Salle de bain complète avec baignoire, douche séparée, toilette et mobilier suspendu pour un entretien facilité
• Buanderie intégrée

La maison KISÔ peut être installée sur fondation avec sous-sol ou dalle de béton, selon vos besoins. Les finitions sobres et couleurs neutres créent une atmosphère moderne, chaleureuse et lumineuse, où chaque pièce respire et favorise le bien-être.

Pour en savoir davantage sur la technologie de préfabrication H.O.M, visitez hom.maisonalaprise.com

Illustrations à titre indicatif. Meubles et décorations non inclus.

En savoir plus
Partager
Rendus
Inspirations
Rapprochez-vous de votre rêve
Autres solutions utiles pour votre projet
Vous aimeriez modifier ce modèle ?
Pour répondre à vos besoins, nous pouvons apporter des modifications à nos modèles. Ou apportez-nous vos inspirations, croquis ou plan d'architecte. Vive la préfabrication sur mesure!
Prenez rendez-vous >
Vous aimeriez personnaliser votre mode d’acquisition?
Pour respecter votre budget, il est aussi possible de personnaliser votre mode d'acquisition. Faites des scénarios budgétaires avec un conseiller et rapprochez-vous de votre rêve!
Contactez nos conseillers >
Nous fabriquons sur mesure
Le kit Laprise permet la préfabrication sur mesure des composantes structurales d'un projet en fonction du plan choisi ou du plan d'architecture fourni. Renseignez-vous!
Découvrez notre kit >
heartmap-markermapmagnifiercrossmenuarrow-leftarrow-right