Modèle

OYÔ

Prix sur demande
2
1
Yes
1050 pi2

OYÔ - Modèle de maison préfabriquée de série H.O.M - conçu selon un processus de Haute Optimisation Manufacturière.
Le modèle OYÔ incarne le style scandinave contemporain, épuré et minimaliste. Sa signature nordique, avec un encadré triangulaire typique et une grande fenestration côté villégiature, inonde les espaces de vie de lumière et offre des vues dégagées sur le paysage. La façade opposée, plus sobre et intime, assure discrétion, flexibilité d’implantation et adaptation optimale au terrain.

Une maison, deux visages
Le modèle OYÔ combine deux façades en une seule maison : une façade panoramique côté villégiature et une façade discrète côté urbain. Vous pouvez pivoter et implanter la maison selon votre terrain et vos besoins. En pleine nature, profitez d’une vue spectaculaire grâce à la façade vitrée ; en milieu urbain, la façade plus sobre garantit intimité et discrétion. OYÔ s’adapte avec style et intelligence à son environnement.

La préfabrication au cœur de l’innovation
Son architecture simplifiée permet une production rapide et accessible, tout en intégrant des équipements de série à forte valeur ajoutée pour maximiser qualité et fonctionnalité. Les dimensions et matériaux ont été optimisés pour réduire l’empreinte et assurer une performance durable.

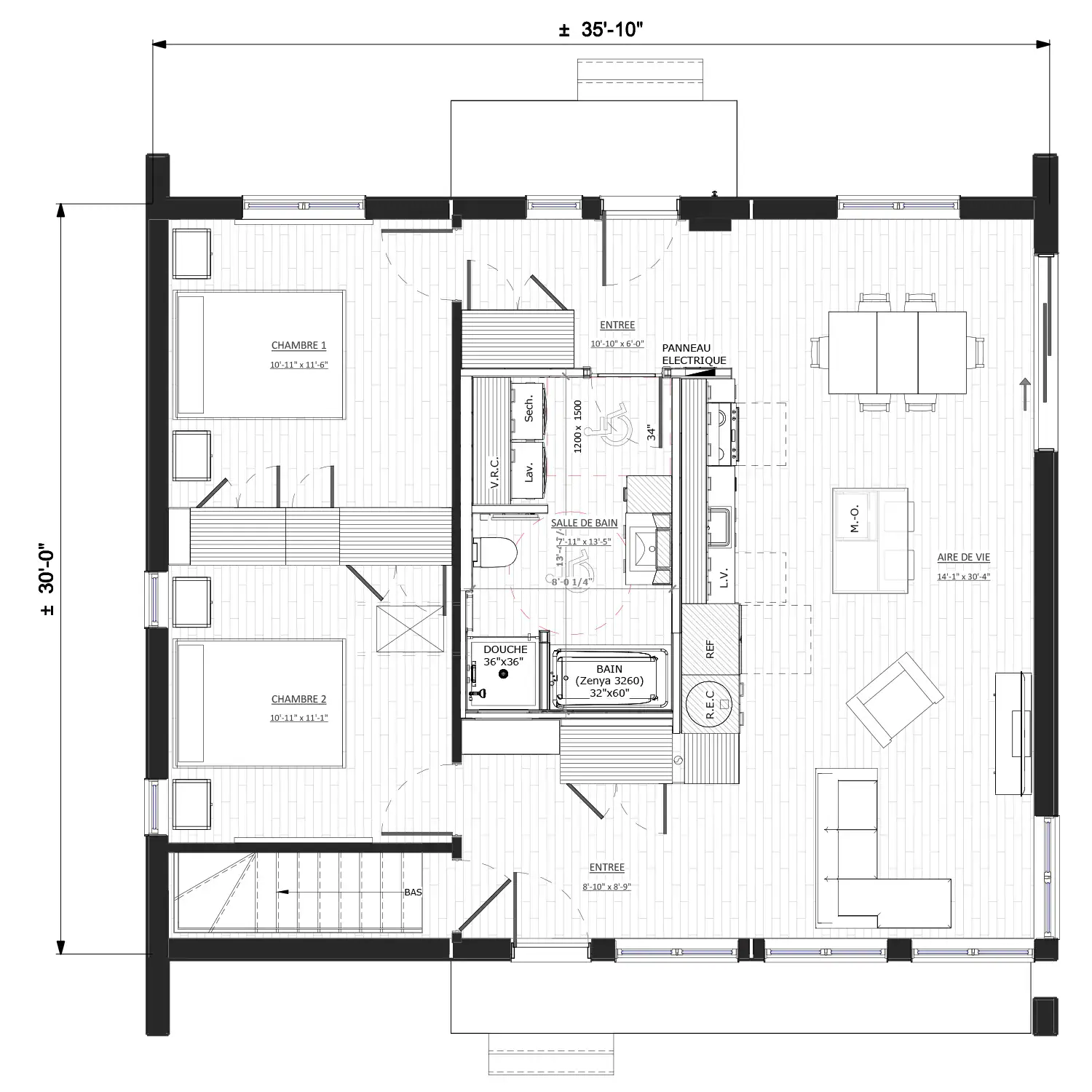
Son aire de vie ouverte et lumineuse comprend :
• Salon panoramique
• Salle à manger avec porte-patio
• Cuisine conviviale avec îlot central

L’aménagement comprend :

• Deux chambres avec penderies
• Entrée avec garde-robe, coin banquette, espace escalier ou rangement selon le type de fondation choisie
• Salle de bain complète avec bain, douche à l’européenne indépendante, toilette et mobilier suspendu pour un entretien simplifié
• Buanderie intégrée

La maison OYÔ peut être installée sur fondation de béton avec sous-sol ou sur dalle de béton, selon vos besoins. Les surfaces neutres et finitions sobres créent une atmosphère moderne, chaleureuse et connectée à la nature, où chaque espace respire et invite à la détente.

Pour en savoir davantage sur la technologie de préfabrication H.O.M, visitez hom.maisonalaprise.com

Illustrations à titre indicatif seulement. Meubles et décorations non inclus.

En savoir plus
Partager
Rendus
Rendus intérieurs
Rapprochez-vous de votre rêve
Autres solutions utiles pour votre projet
Vous aimeriez modifier ce modèle ?
Pour répondre à vos besoins, nous pouvons apporter des modifications à nos modèles. Ou apportez-nous vos inspirations, croquis ou plan d'architecte. Vive la préfabrication sur mesure!
Prenez rendez-vous >
Vous aimeriez personnaliser votre mode d’acquisition?
Pour respecter votre budget, il est aussi possible de personnaliser votre mode d'acquisition. Faites des scénarios budgétaires avec un conseiller et rapprochez-vous de votre rêve!
Contactez nos conseillers >
Nous fabriquons sur mesure
Le kit Laprise permet la préfabrication sur mesure des composantes structurales d'un projet en fonction du plan choisi ou du plan d'architecture fourni. Renseignez-vous!
Découvrez notre kit >
heartmap-markermapmagnifiercrossmenuarrow-leftarrow-right