Retour aux modèles
Modèle

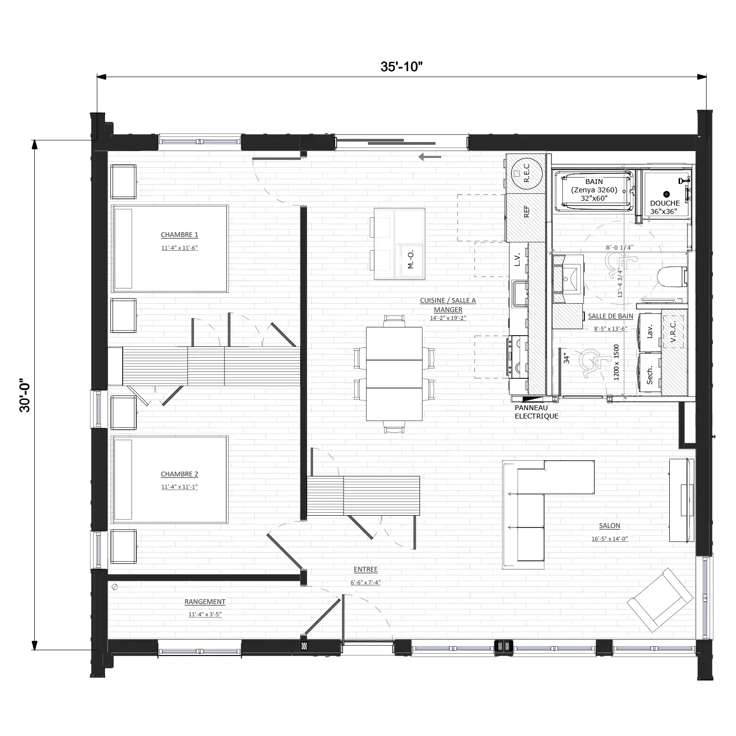
SAYÔ - modèle de série H.O.M

Modèle

SAYÔ - modèle de série H.O.M

Prix sur demande
2
1
No
1050 pi2

Sayô - Modèle de maison préfabriquée de série H.O.M - conçu selon un processus de Haute Optimisation Manufacturière. 

Un design audacieux pour une vie tout en confort avec la nature !
Avec ses toits en pente inversée, inspirés du modernisme Mid-Century, Sayô affirme une géométrie audacieuse. Le rythme de ses volumes et le contraste de ses matériaux et couleurs lui confèrent un style villégiature résolument contemporain. Décliné en noir ou en blanc, Sayô séduit par sa luminosité généreuse, ses vues ouvertes et son potentiel d’intégration harmonieux au paysage.

À l’intérieur, lumière et vue sont à l’honneur grâce à un séjour aux fenêtres panoramiques ouvert sur l’extérieur. La salle à manger et la cuisine accueillante avec îlot central et porte-patio deviennent le cœur de la maison, idéale pour partager de bons moments et accéder au jardin.

Côté pratique, le modèle comprend deux chambres avec penderies, une entrée fonctionnelle avec garde-robe et coin pour banquette, ainsi qu’une salle de bain complète avec bain, douche européenne indépendante, toilette et mobilier suspendu pour un entretien simplifié, sans oublier une buanderie intégrée.

Son noyau technique à valeur ajoutée est 100% préfabriqué intègre l’électricité, la ventilation, la plomberie ainsi que les équipements de la cuisine et de la salle de bain. Le résultat : un module rapide à installer sur chantier, permettant un gain de temps considérable et une connexion simplifiée aux services lors de l’installation sur vos fondations.

Enfin, adaptez votre maison à vos besoins avec un choix de fondation traditionnelle avec sous-sol ou fondation sur dalle de béton sur sol.

Le modèle Sayo combine design, fonctionnalité et confort moderne pour devenir l’endroit où vous aurez envie de vivre, chaque jour. Découvrez Sayô par Maisons Laprise.

Illustrations à titre indicatif seulement. Meubles et decorations non inclus.

En savoir plus
Partager
Rendus
Interior
Rapprochez-vous de votre rêve
Autres solutions utiles pour votre projet
Vous aimeriez modifier ce modèle ?
Pour répondre à vos besoins, nous pouvons apporter des modifications à nos modèles. Ou apportez-nous vos inspirations, croquis ou plan d'architecte. Vive la préfabrication sur mesure!
Prenez rendez-vous >
Vous aimeriez personnaliser votre mode d’acquisition?
Pour respecter votre budget, il est aussi possible de personnaliser votre mode d'acquisition. Faites des scénarios budgétaires avec un conseiller et rapprochez-vous de votre rêve!
Contactez nos conseillers >
Nous fabriquons sur mesure
Le kit Laprise permet la préfabrication sur mesure des composantes structurales d'un projet en fonction du plan choisi ou du plan d'architecture fourni. Renseignez-vous!
Découvrez notre kit >
heartmap-markermapmagnifiercrossmenuarrow-leftarrow-right