Retour aux modèles
Modèle

VIVÔ 2.0 - modèle de série H.O.M

Modèle

VIVÔ 2.0 - modèle de série H.O.M

Prix sur demande
2
1
No
1050 pi2

Vivo 2.0 - Modèle de maison préfabriquée de série H.O.M - conçu selon un processus de Haute Optimisation Manufacturière.  L’évolution intelligente de l’habitat. Bienvenue dans une nouvelle ère d’habitation accessible, durable et pensée pour la vie moderne. Vivô 2.0 est le fruit d’une innovation, fondée sur des principes de conception intelligents qui allient qualité de fabrication, rapidité d’assemblage et maîtrise des coûts — sans compromis sur le confort ni l’esthétique.

Une maison, deux visages: un aspect villégiature et un aspect urbain 

Vivô 2.0 est conçue pour avoir 2 visages dans une seule et même maison: Façade privée et façade panoramique. Pivotez et implantez sur votre terrain comme vous le souhaitez. Que ce soit en nature, avec sa façade vitrée tournée vers le panorama, ou en milieu urbain, avec sa façade discrète, Vivô 2.0 s’adapte à son environnement avec style et intelligence.

Les points forts de la Vivô 2.0 :

Design modulaire & architecture simplifiée
Une approche optimisée pour une production rapide et accessible à un plus grand nombre.

Structure intelligente & équipements de série à forte valeur ajoutée
Grâce à son noyau technique, la mécanique du bâtiment, la cuisine, la salle de bain et buanderie sont équipées de série et préinstallées en usine ! Chaque élément est pensé pour maximiser la qualité et la fonctionnalité, tout en maintenant une accessibilité financière — parce que chaque mètre carré et chaque dollar comptent.

Empreinte réduite & performance durable
Des dimensions optimisées, des matériaux durables et écoresponsables pour construire mieux, avec moins.

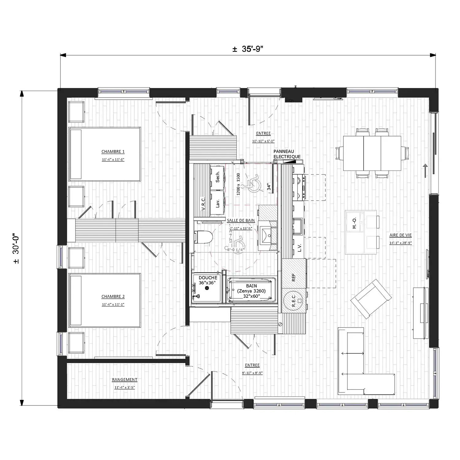
Son aire de vie ouverte et lumineuse séduit d’emblée :

  • Salon panoramique,
  • Salle à manger avec porte-patio,
  • Cuisine conviviale avec îlot central.

L’aménagement inclut :

  • Deux chambres avec penderies,
  • Une entrée fonctionnelle avec garde-robe et coin banquette,
  • Une salle de bain complète avec bain, douche indépendante, toilette et mobilier suspendues pour entretien simplifié et buanderie intégrée.

La maison Vivô 2.0 peut être installée sur fondation de béton avec sous-sol ou sur fondation sur dalle de béton, selon vos besoins.

Pour en savoir davantage sur la technologie de préfabrication H.O.M, visitez hom.maisonalaprise.com

Illustrations à titre indicatif seulement. Meubles et décorations non inclus.

En savoir plus
Partager
Rendus
Rendus intérieurs
Rapprochez-vous de votre rêve
Autres solutions utiles pour votre projet
Vous aimeriez modifier ce modèle ?
Pour répondre à vos besoins, nous pouvons apporter des modifications à nos modèles. Ou apportez-nous vos inspirations, croquis ou plan d'architecte. Vive la préfabrication sur mesure!
Prenez rendez-vous >
Vous aimeriez personnaliser votre mode d’acquisition?
Pour respecter votre budget, il est aussi possible de personnaliser votre mode d'acquisition. Faites des scénarios budgétaires avec un conseiller et rapprochez-vous de votre rêve!
Contactez nos conseillers >
Nous fabriquons sur mesure
Le kit Laprise permet la préfabrication sur mesure des composantes structurales d'un projet en fonction du plan choisi ou du plan d'architecture fourni. Renseignez-vous!
Découvrez notre kit >
heartmap-markermapmagnifiercrossmenuarrow-leftarrow-right